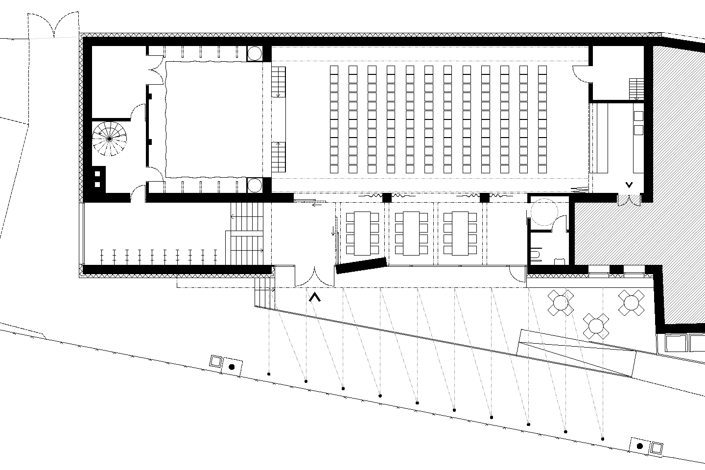
Kulturní sál Krčma
Kulturní sál Krčma

Kulturní sál Krčma v Mnichovicích. Důležitý středobod utvárřející místní komunitu. 

I přes nepříliš šťastně umístění v boční uličce vytváří jasně zapamatovatelný charakter, vítající návštěvníky.

Kromě plesů, koncertů, divadla nebo kina zde najdou potřebné zázemí i místní spolky a kluby.

1. místo ve vyzvané architektonické soutěži

místo / Mnichovice

rok / 2024

velikost / 700m2

fáze / projekt pro provedení stavby

architekt / Tomáš Hanus, Jan Holub

spolupráce / Filip Ohlsen