Rekonstrukce stodoly
Rekonstrukce stodoly

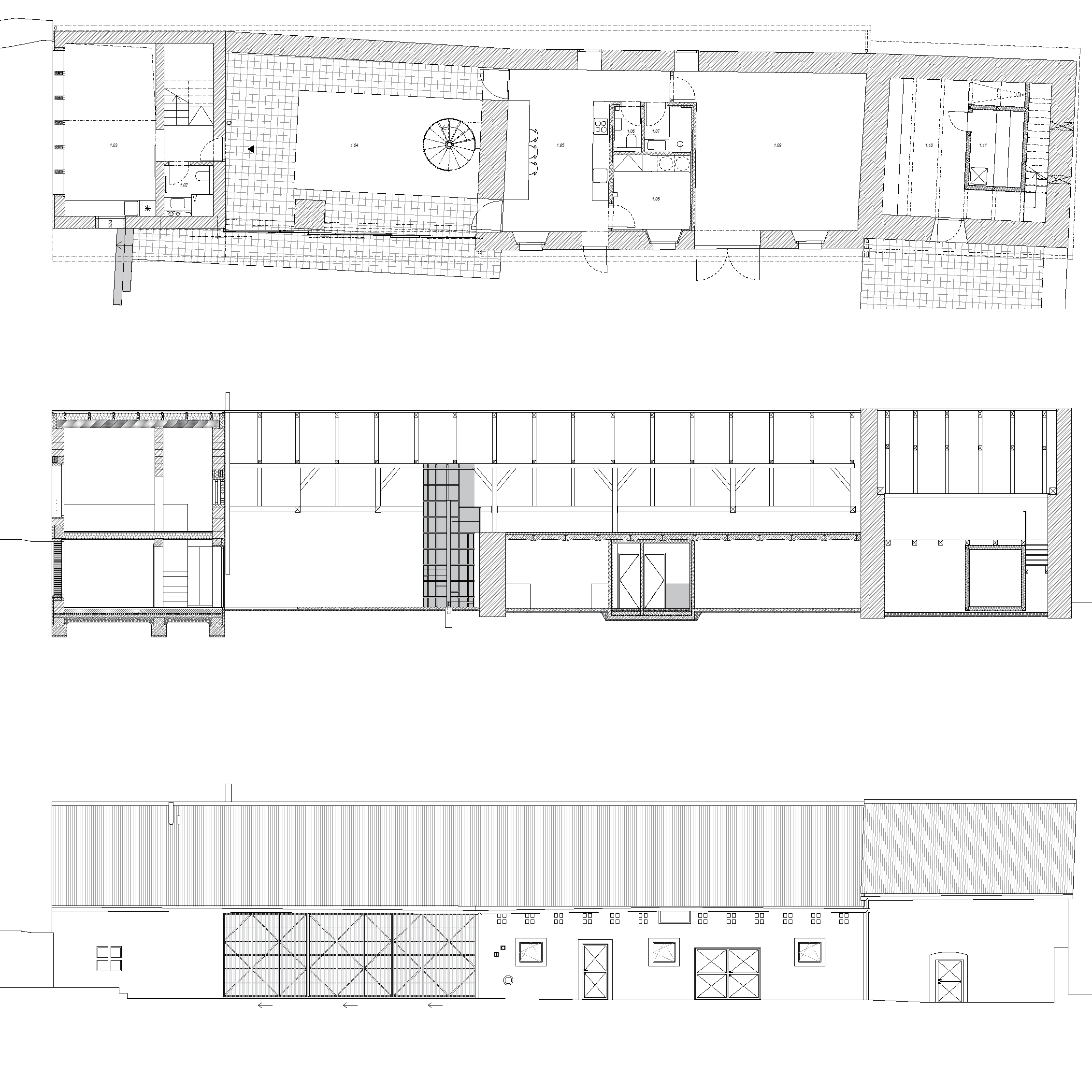
Stará stodola v blízkosti návsi obce Smrkovec. V celku tvoří součást bývalého statku, z části již opraveného.

Vkládáme do ni novou funkci uzpůsobenou pro trávení volného času a přidáváme nenápadnou novostavbu vejminku.

Objekt zůstává zvenčí nenápadný, téměř původní, uvnitř je ovšem pestrý a uzpůsobený variabilnímu využití. 

místo / Smrkovec

rok / 2024

velikost / 460m2

fáze / v realizaci

architekt / Tomáš Hanus, Jan Holub

spolupráce / Filip Ohlsen